СИСТЕМЫ ЦЕНТРАЛЬНОГО ПЫЛЕУДАЛЕНИЯ

Системы центрального пылеудаления — стационарные комплексы для эффективного и гигиеничного поддержания чистоты в зданиях. В основе лежит скрытая сеть из воздуховодов, встроенных инлетов («пневморозеток») и мощного вакуумного агрегата, обеспечивающего их работу.

Компания PUZER уже более 20 лет проектирует, поставляет и монтирует такие системы. В настоящее время PUZER использует оборудование от итальянских и шведских поставщиков.

КОМПОНЕНТЫ СИСТЕМЫ

[01]

Вакуумные агрегаты

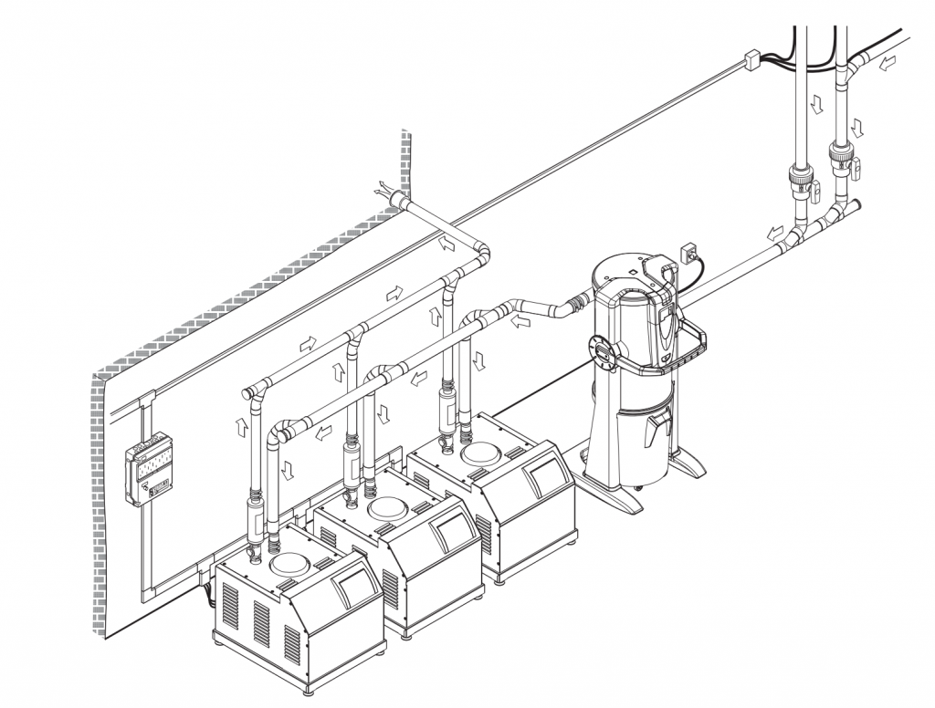
Основной элемент системы — вакуумный агрегат — включает двигатель для создания вакуума, а также сепаратор для отделения пыли от воздушного потока и ее сбора в герметичный контейнер или мешок. Двигатель и сепаратор могут быть как в едином корпусе, так и в виде отдельных устройств. Оборудование центральной станции подбирается в соответствии с параметрами объекта. Доступны различные варианты агрегатов, а также их комбинация для уборки помещений любых размеров – от небольшого офиса до целого здания гостиницы или театра.

[02]

Трубопроводы

Сеть вакуумных труб служит для транспортировки пыли и мусора от пневморозеток к вакуумному агрегату. Доступна открытая и скрытая прокладка труб диаметром 50, 63, 80 и 100 мм, которые монтируются в стены, пол и потолок. В зависимости от среды применения используются антистатичный пластик PVC-U (для обычных сред) и нержавеющая сталь AISI 304 (для агрессивных сред).

[03]

Инлеты

Инлеты представляют собой точки подключения шланга. Устанавливаются в стену или пол, доступны в вариантах открытого и скрытого монтажа во множестве форм и дизайнов. Для настенных инлетов предусмотрены исполнения с подключаемым внешним шлангом или со шлангом, убирающимся в стену.

[04]

Инструменты и аксессуары

К инлетам подключаются различные инструменты для уборки: шланги, рукоятки, щетки и насадки. Длина шлангов может достигать 12 м (7, 9, 12 м). Рукоятки доступны как с беспроводной системой включения, так и без нее.

ДОПОЛНИТЕЛЬНО

[01]

Дополнительные аксессуары

Широкий ассортимент аксессуаров: циклонные сепараторы для сбора жидкостей или золы, системы автоматической смены контейнеров, различные насадки и аксессуары для специализированной уборки.

[02]

Возможности кастомизации

Компания PUZER предлагает услугу нанесения (печати) любой текстуры на лючки настенных и напольных инлетов при желании максимально замаскировать их в интерьере.

Как это работает

Уборка начинается с подключения шланга с щеткой к инлетам. Система включается автоматически при подсоединении шланга или нажатием кнопки на рабочей насадке в зависимости от конфигурации. Всасываемые пыль и мусор через вакуумные трубопроводы попадают в основной элемент системы — вакуумный агрегат, который устанавливается в техническом помещении и обеспечивает бесшумную работу в зоне уборки. Очищенный через систему фильтров воздух выводится за пределы здания, что предотвращает повторное загрязнение воздуха внутри помещения.

СХЕМЫ ЦС

Преимущества

[01]
Гигиена
Воздух с пылью и аллергенами полностью выводится из помещения. Отсутствие выброса воздуха с микропылью назад в помещение — ключевое отличие от уборки обычным пылесосом.
[02]
Тишина
Мотор системы находится удаленно, вне зоны уборки, что обеспечивает низкий уровень шума и не создает дискомфорта для работающих или отдыхающих вокруг людей.
[03]
Удобство эксплуатации
Вместо громоздкого пылесоса используется легкий гибкий шланг. Система не требует частого обслуживания, а пылесборник очищается раз в несколько недель.
[04]
Широкая сфера применения
Системы подходят для гостиниц, офисов, медицинских учреждений, жилых и общественных зданий, складов и производств.
[05]
Гибкая интеграция
Возможность выбора конфигурации трубопроводов, инлетов и агрегатов, а также широкий выбор отделок инлетов позволяют интегрировать систему в любой интерьер.

СИСТЕМА В ОФИСЕ
SMART GROUP

Система, поставленная компанией PUZER, доступна для осмотра и демонстрации в головном офисе Smart Group в Москве. Мы рады продемонстрировать систему, аксессуары и ответить на ваши вопросы.

От идеи до эксплуатации

Компания обеспечивает комплексное сопровождение 
на всех этапах проекта
1. Консультация
Оперативная экспертная поддержка от специалистов 
по продажам, проектирования и R&D
2. Разработка концепции
Бесплатная разработка нескольких предложений, адаптированных под объект
3. Проектная документация
Заключение договора на разработку проектной документации с применением BIM-технологий и успешного опыта в проектных командах
4. Рабочая документация
Детальная проработка системы со спецификацией узлов, элементов и крепежа для качественного монтажа и долгой эксплуатации
5. Договор подряда
Комплексное внедрение систем: производство, поставка, монтаж, программирование и пусконаладочные работы
6. Сервисное обслуживание
Гарантийное и постгарантийное обслуживание, консультации и оперативная поддержка

PUZER разрабатывает и поставляет автоматизированные решения для сбора 
и удаления отходов, а также занимается поставками систем центрального пылеудаления.

Уже более 20 лет компания проектирует и внедряет системы управления отходами. С 2018 года, став частью холдинга Smart Group, PUZER значительно расширила свои возможности — перешла к собственной разработке и производству оборудования, опираясь на многолетний опыт в проектировании и эксплуатации импортных систем.

Собственный R&D-отдел обеспечивает непрерывное развитие продуктов и технологическую независимость. А многолетний опыт проектирования позволяет эффективно сотрудничать с ведущими девелоперами, архитекторами и генподрядчиками, реализующими современные городские пространства.

Напишите нам

Отправьте форму, и мы свяжемся с вами в ближайшее время.